Obrazek ładowania

0

Działka Sprzedaż

Jeroniki

4555m2,

Cena: 2 000 000 PLN

439,08 PLN/m2

Typ działki

Forma własności

własność

Gmina

Choroszcz

Województwo

Podlaskie

DZIAŁKA Z PROJEKTEM

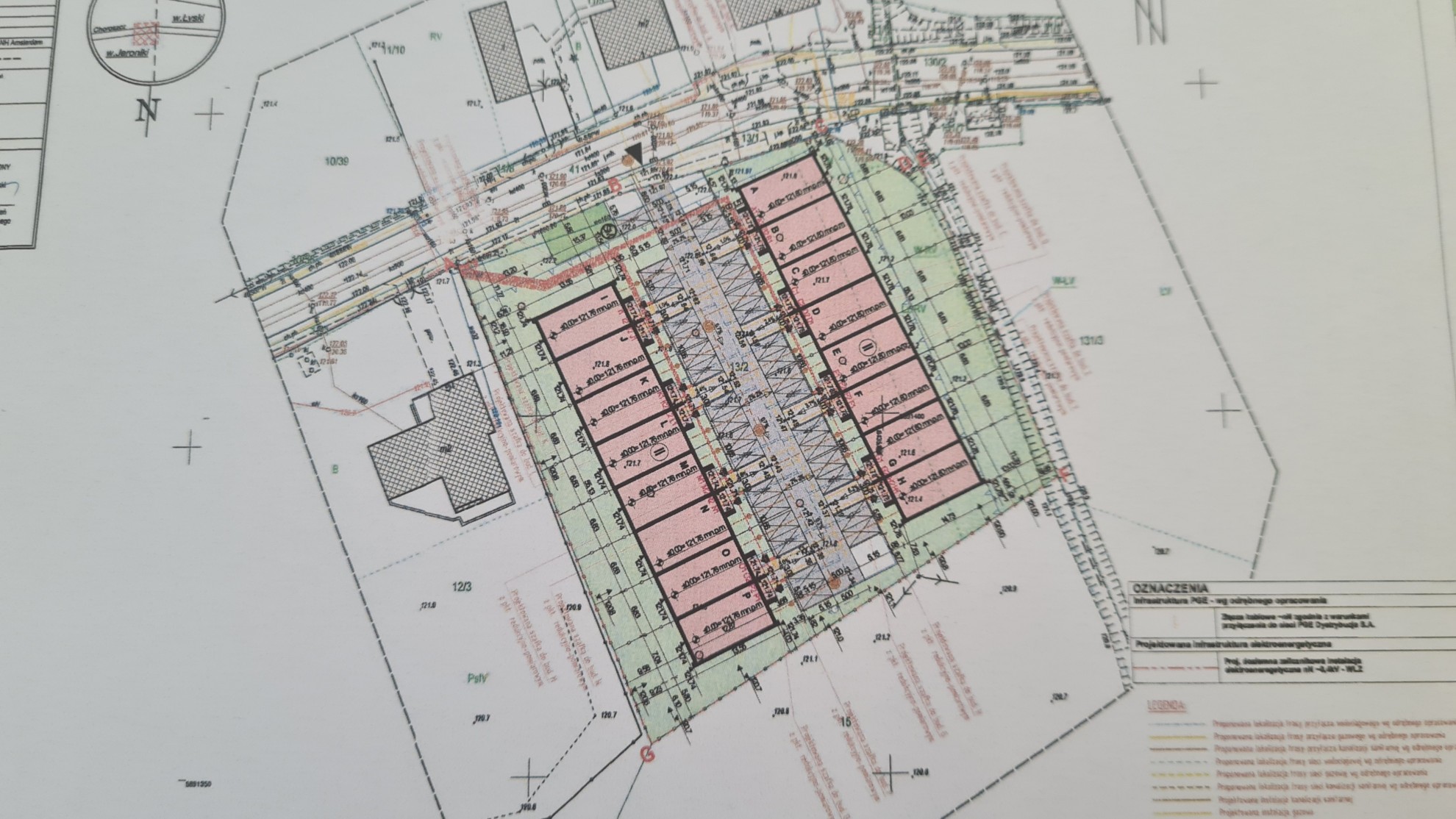
Do sprzedaży działka  z projektem budowlanym  położona w miejscowości Jeroniki, gm. Choroszcz o powierzchni 4.555m2.  

Przedmiotem inwestycji jest 16 budynków mieszkalnych jednorodzinnych dwulokalowych o powierzchni użytkowej całkowitej 2800m2 wraz z wiatami.  Budynki Posiadają dwie kondygnacje: parter i piętro wraz z antresolą .

Budynki na działce zaprojektowano w dwóch szeregach.   

Lokal na parterze: 71m2 z działką ok.100m2 oraz wiata na samochód. 

Lokal na piętrze: 70m2 z antresolą 30m2 i tarasem 21m2 oraz wiata ma samochód. 

Uzbrojenie:
Prąd, woda, kanalizacja, gaz .

Teren, na którym położona  jest działka w planie zagospodarowania przestrzennego przeznacza się pod zabudowę mieszkaniową jednorodzinną, tj. do zabudowy budynkami wolnostojącymi albo w zabudowie bliźniaczej, szeregowej lub grupowej, parterowe lub jednopiętrowe.

 

POLECAM I ZAPRASZAM NA PREZENTACJĘ

tel. 884 844 511

 

Gwarancja bezpieczeństwa - nasze transakcje są ubezpieczone; numer licencji pośrednika w obrocie nieruchomościami 4277.
Podane dane mają charakter wyłącznie informacyjny i winny być traktowane jako zaproszenie do zawarcia umowy. Informacja nie stanowi oferty w rozumieniu art.66 KC oraz innych właściwych przepisów prawnych.
Informacje umieszczone w ofertach przekazywane są przez właścicieli nieruchomości i mogą ulegać zmianom. Dokładamy wszelkich starań, aby wszystkie oferty były aktualne i odpowiadały stanowi rzeczywistemu.

Oferta nr 3892

Opiekun Oferty

Beata Carewicz

884 844 511

sekretariat@werelfox.pl

Zapytaj o nieruchomość